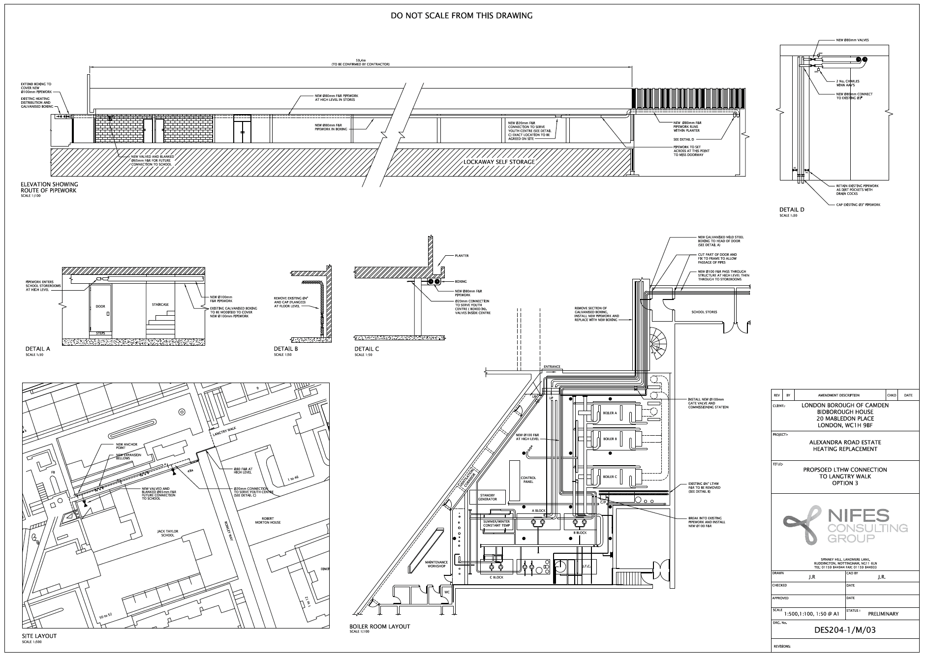
The district heating system
The estate’s boiler house sits on the middle level and marks the centrepoint of the estate with its blue flues signalling the estate’s visible heart. The boiler house provides district heating to the whole of the development with heating for each home piped directly into the concrete walls. While this removes the need for radiators, and frees up wall space for furniture, it has historically made access to piping for repairs difficult.
Repairs to the estate’s heating system has been made more of a challenge since the estate received grade II* listing in 1993. As a result, an application for heating pipes to be mounted on the exterior of the building was made in 2010. There are currently ongoing debates about how to upgrade and repair the estate’s heating system. Some current residents report that their homes are too warm and the light from the windows combined with the wall-heating means that their homes are too dry to be comfortable.
Walking around the estate, you can note the golden rules of the architect's design: every flat would have a front door to the outside with a house number on a named street, every house would have a private outdoor space open to the sky, and every house would have a full-height window opening onto this space.
The last principle, in conjunction with the engineering feat of the district wall heating creates an unfortunate friction. As the heating is centralised and unregulated from autumn to spring, residents are left with their windows as moderators of the heat. Having full-height windows, or alternatively double-glazed windows blocking the railway presence, seem to be in conflict with the heating system. The charm of the windows, or the sound-blocking effect seem voided by the need to open them to regulate temperatures.
Hilgrove and Chalcots Estates use a District Heating system which communalises heating and allows the council to buy gas in bulk, which can make heating cheaper. However, this can mean that when a part of the heating system goes down, the whole estate may be affected.
[Link to Alexandra Road Estate]


